
Īss apraksts:
Eiropas vienvirziena virsbūves celtnis ir kompakts pacelšanas mehānisms, kas projektēts un izgatavots stingri saskaņā ar FEM un DIN standartu, kas ir aprīkots ar progresīvām tehnoloģijām un skaistu dizainu. Sadalīts vispārējā tipa un apturēšanas tipa, atbalstot Eiropas standarta elektrisko pacēlāju, piemērots darbnīcas un noliktavas materiālu apstrādei, lielu detaļu precizitātes montāžai un citās vietās.

Tas varētu tikt plaši izmantots mašīnu ražošanā, metalurģijā, naftas, naftas pārstrādes, ostas, dzelzceļa, civilās aviācijas, pārtikas, papīra ražošanas, celtniecības, elektronikas rūpniecības darbnīcu, noliktavu un citu materiālu apstrādes situācijās, esp. ko izmanto materiālu apstrādei, kam nepieciešama precīza pozicionēšana, lielas sastāvdaļas precīzi montāžas situāciju.

Detalizēti attēli:

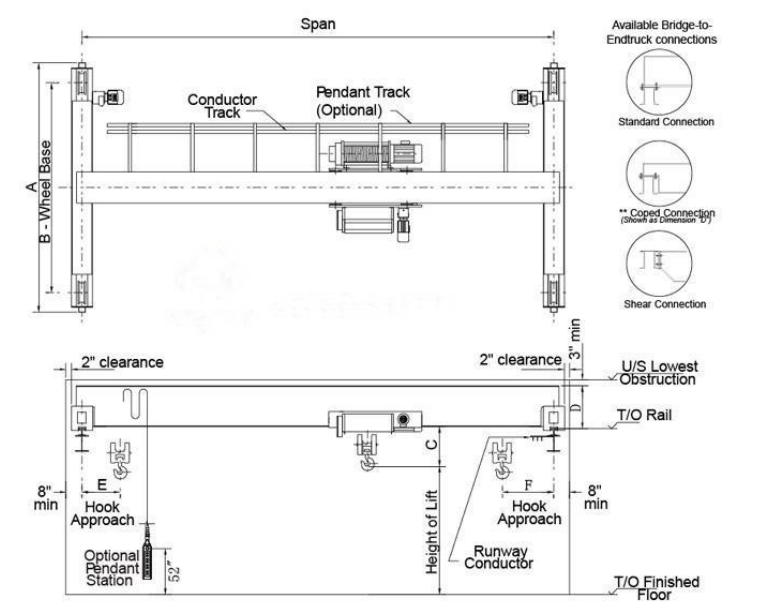
Skices zīmējums:

Tehniskie parametri:
Spans | m | 7.5 | 10.5 | 13.5 | 16.5 | 19.5 | 22.5 | 25,5 |
Jauda | t | 1 ~ 12,5t | ||||||
Kopējais svars | Kilograms | 1781 ~ 12086 | ||||||
Ratiņu svars | Kilograms | 405 ~ 740 | ||||||
Maks. Riteņa slodze | kn | 13,5 ~ 90,94 | ||||||
Ceļojuma dzelzceļš | P24 ~ P43 | |||||||
Pacelšanas ātrums | m / min | 0.8 / 5 | 0.8 / 5 | 0.8 / 5 | 0.8 / 5 | 0.8 / 5 | 0.8 / 5 | 0.8 / 5 |
Pacelšanas augstums | m | ≥ 6 | ≥ 6 | ≥ 6 | ≥ 6 | ≥ 6 | ≥ 6 | ≥ 6 |
Kopējā motora jauda | kw | 4.31 | 4.31 | 4.31 | 4.31 | 4.67 | 4.67 | 4.67 |
Celtņa ātrums | m / min | 3-30 | 3-30 | 3-30 | 3-30 | 3-30 | 3-30 | 3-30 |
Ratiņu ātrums | m / min | 2-20 | 2-20 | 2-20 | 2-20 | 2-20 | 2-20 | 2-20 |
Darba pienākumi | M5 / A5 | |||||||
